In attraktiver und verkehrsgünstiger Wohnlage von Halstenbek entsteht ein modernes Doppelhaus im zukunftsorientierten KfW-40-Energiestandard. Klare architektonische Linien, eine hochwertige Ausstattungsbasis sowie flexible Gestaltungsmöglichkeiten vereinen sich hier zu einem zeitgemäßen Zuhause mit hohem Wohnkomfort.
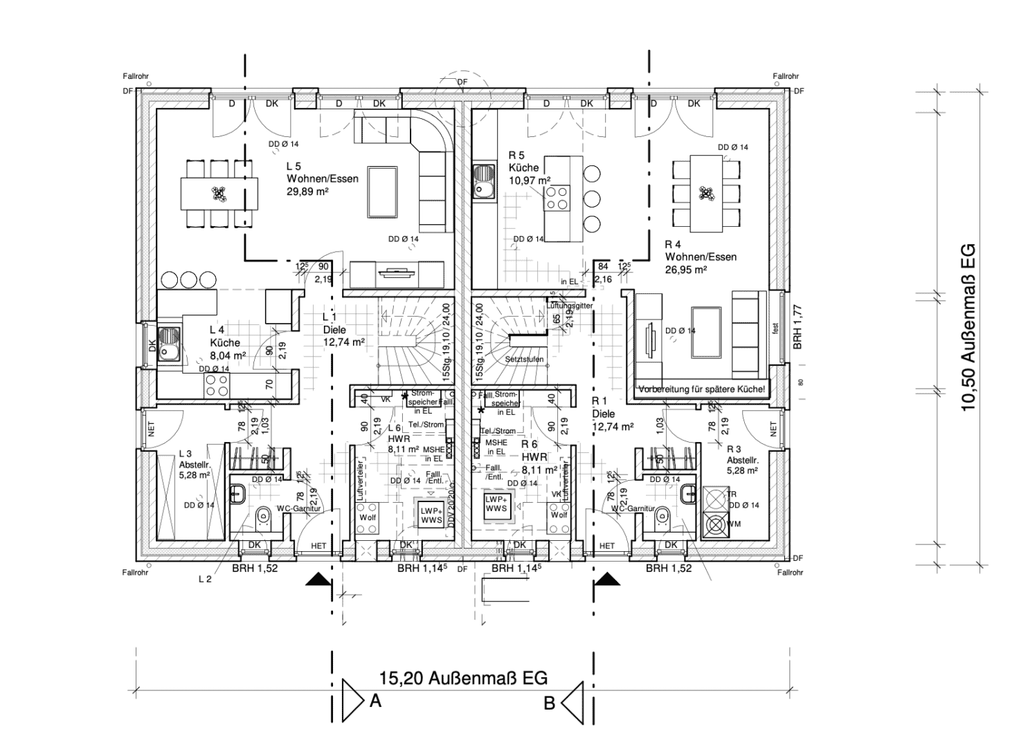
Auf einem ca. 287 m² großen Grundstück wird eine Doppelhaushälfte mit rund 133 m² Wohnfläche realisiert. Die vier großzügig geschnittenen, lichtdurchfluteten Zimmer bieten ausreichend Platz für Paare oder Familien und ermöglichen eine flexible Nutzung.
Ausgestattet mit einer effizienten Wärmepumpe, dreifach verglasten Fenstern und einer hochwertigen Wärmedämmung erfüllt das Haus höchste energetische Anforderungen. Dies sorgt nicht nur für niedrige Energiekosten, sondern auch für ein dauerhaft angenehmes Wohnklima und nachhaltiges Wohnen mit Zukunft.
Da sich das Bauvorhaben aktuell in der Planungsphase befindet, haben Sie als Käufer die Möglichkeit, Ihr neues Zuhause aktiv mitzugestalten. Ob Grundrissvarianten, Material- und Farbkonzepte oder Ausstattungsdetails wie Bodenbeläge, Sanitärobjekte oder Fassadenelemente – Ihre individuellen Wünsche können berücksichtigt werden.
Großzügige Fensterflächen schaffen helle, freundliche Räume und unterstreichen das offene Wohnkonzept. Der Wohn- und Essbereich mit direktem Zugang zur Terrasse und zum Garten bildet das Herzstück des Hauses und lädt zu geselligen Stunden mit Familie und Freunden ein. Das Obergeschoss bietet Rückzugsmöglichkeiten mit Platz für Schlafzimmer, Kinderzimmer oder ein Homeoffice.
Zwei Stellplätze befinden sich direkt am Haus.
Dieses Neubauprojekt überzeugt durch moderne Architektur, hohe Energieeffizienz und individuelle Gestaltungsspielräume – ideal für alle, die ein stilvolles Zuhause in ruhiger Lage mit sehr guter Anbindung an Hamburg und das Umland suchen.
